Mónaco – Preventa de departamentos en Benito Juárez

Desde $ 3,643,984 hasta $ 5,020,502
Calle Mónaco 320|, Zacahuitzco, Ciudad de México, CDMX, México, Zacahuitzco

Detalles

  • 2 Dormitorios
  • 2 Baños
  • 1 Estacionamiento(s)

Descripción

Vive Del Valle con Estilo y Confort

Ubicado en una de las zonas más privilegiadas de la CDMX, MÓNACO 320 es un desarrollo exclusivo que combina diseño, funcionalidad y calidad de vida en el corazón de la Colonia Del Valle.

Este proyecto residencial ha sido concebido para quienes valoran los espacios amplios, la tranquilidad de una zona residencial consolidada y la cercanía a vías principales, comercios, parques y servicios de primer nivel.

Características destacadas:

Departamentos con distribuciones modernas y funcionales

Espacios exteriores que integran terrazas y áreas verdes

Acabados de alta calidad y excelente iluminación natural

Diseño arquitectónico contemporáneo

Ambiente privado con pocas unidades

¿Por qué invertir en MÓNACO?
Del Valle es una de las colonias con mayor plusvalía, ideal tanto para vivir como para invertir a mediano y largo plazo. La combinación de conectividad, entorno familiar y creciente demanda asegura una inversión sólida y rentable.

Agenda una cita y conoce MÓNACO.
Descubre por qué este desarrollo puede ser tu nuevo hogar en una de las mejores ubicaciones de la ciudad.

Características
Balcón
Cisterna
Cocina integral
Elevador
Facilidad para estacionarse

Tipo 1
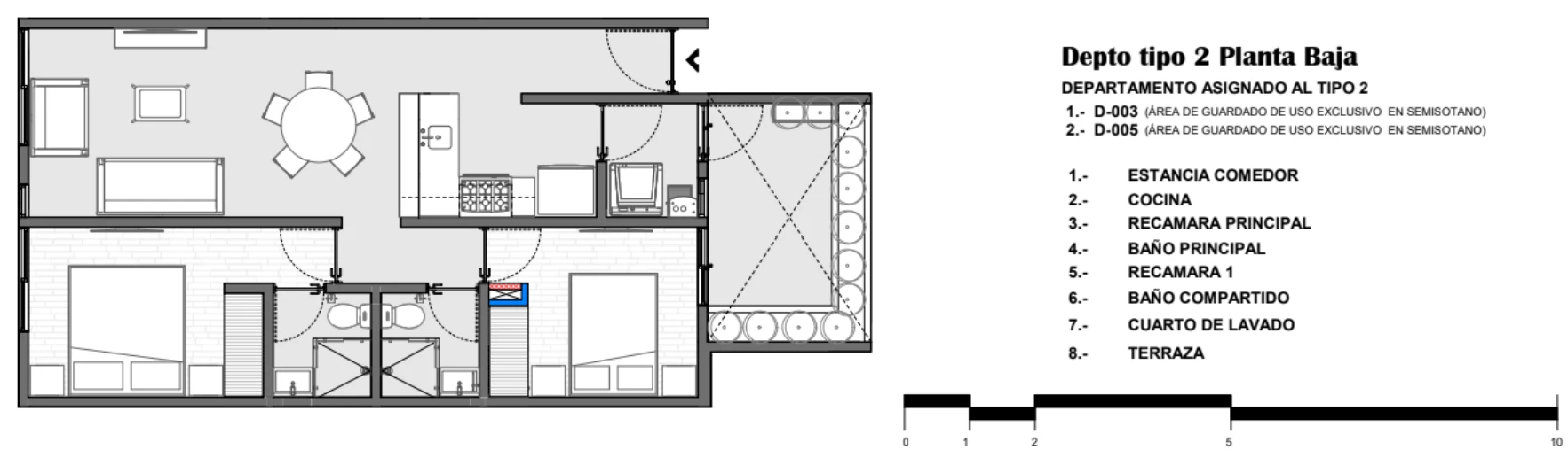
Depto 2 planta baja
Tipo 3 planta baja
Tipo 4 planta baja
Tipo 5 planta baja
Tipo 6
Tipo 7
Tipo 8
Tipo 10
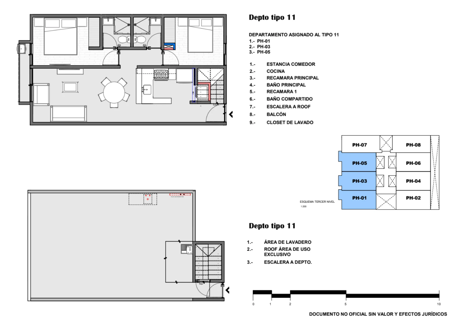
Tipo 11
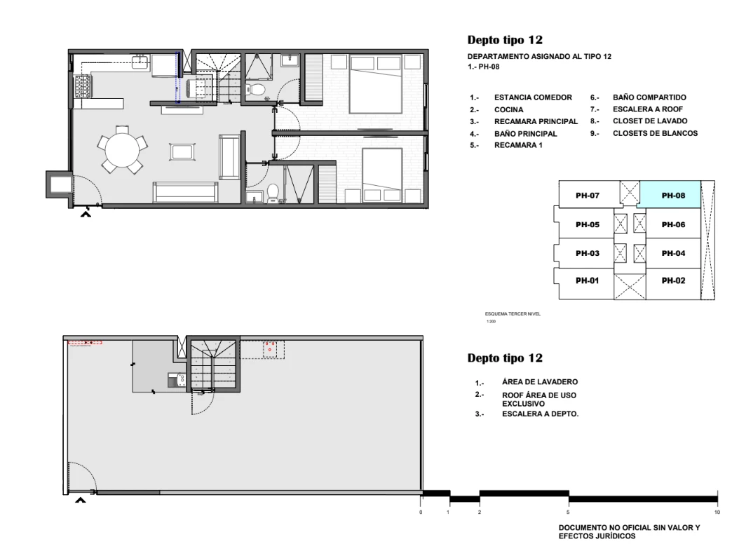
Tipo 12
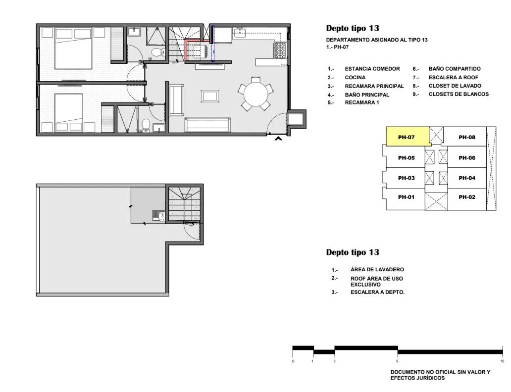
Tipo 13
Tipo 9

Dirección: Calle Mónaco 320|, Zacahuitzco, Ciudad de México, CDMX, México
Ciudad:
Estado/Ciudad:
CP: 03550
País: México

Transporte cercano
Supermercados
Escuelas
Restaurantes
Farmacias
Hospitales

ID de Inmueble: 21394
Precio: Desde $ 3,643,984
Price Info: hasta $ 5,020,502
Tamaño de la Propiedad: 61 m2
Dormitorios: 2
Baños: 2
Estacionamiento: 1
Precio inicial: Desde
precio final: hasta 103.18m2

Dom 16 Nov
Lun 17 Nov
Mar 18 Nov
Mié 19 Nov
Jue 20 Nov
Vie 21 Nov
Sáb 22 Nov
Dom 23 Nov
Lun 24 Nov
Mar 25 Nov
En persona
Video Chat
Tu información

Unidades similares

Venta

Preventa en Portales Norte

Desde $ 4,189,072
2
2
85 m2
1
Venta

Preventa en Benito Juàrez

Desde $ 4,055,043
2
2
70 m2
1

Departamento cerca del aeropuerto

$ 2,389,999
3
1
79 m2
1
Venta

Preventa en Benito Juàrez

Desde $ 4,153,928
2
2
62 m2
1

Compare Listings

trackersre trackersre

¿Quieres vender tu propiedad?

Dejanos tus datos junto con una breve descripción de la propiedad